Revitalizace okolí budovy

Při převodu budovy z rušených okresních úřadů do majetku ČVUT, získala univerzita kromě samotné budovy i přilehlé pozemky. Dostali jsme tak možnost určovat podobu a účel tohoto prostranství, což s sebou nese velký závazek směrem k veřejnosti, ale také nemalé náklady na údržbu a obnovu. Protože žádná veřejná vysoká škola nedostává z MŠMT peníze na údržbu a revitalizaci veřejných ploch, musíme prostředky na tyto činnosti shánět jinde, např. v podobě darů, dotací nebo výdělků z doplňkové činnost. Z toho důvodu nelze všechny zamýšlené změny provést hned a v plném rozsahu. A co vlastně tedy kolem budovy chystáme?

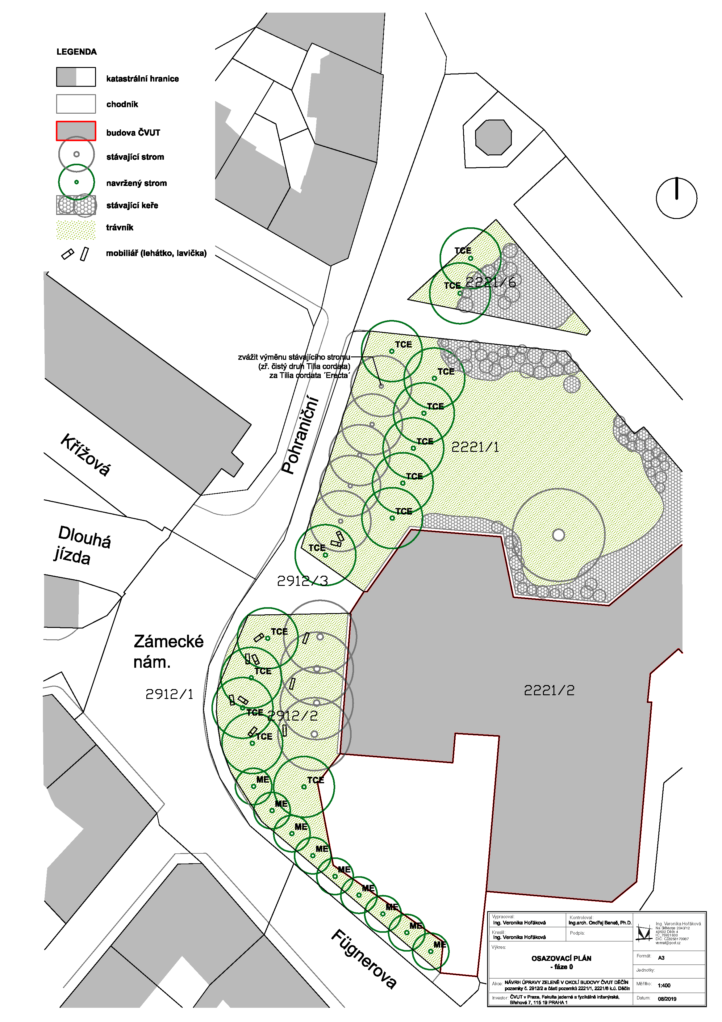
Úprava chodníků a zeleně

Prostor svým uspořádáním a kvalitou stávajících vegetačních prvků neodpovídal (funkčně ani esteticky) požadavkům na městskou zeleň. Keře před zadním vchodem byly navíc často využívány jako veřejné WC a hromadily se zde odpadky. Proto si v roce 2019 ČVUT nechalo zpracovat ideovou studii "Návrh úpravy zeleně v okolí budovy ČVUT". Tato studie připravila podklady pro novou podobu zeleně v ulici Pohraniční. Nelehkého úkolu vtisknout tomuto prostoru novou podobu se ujala Ing. Veronika Hořáková pod vedením tehdejšího městského architekta Ing. arch. Ondřeje Beneše, Ph.D. Hlavní myšlenkou ideové studie je optické oddělení historické zástavby kolem děčínského zámku od novodobé budovy ČVUT. Přestárlé keře kromě nevýhod uvedených výše neposkytovaly chodcům stín, navíc působily jako bariéra kolem budovy. Po dokončení se zelená hmota z úrovně očí přenese do výšky, otevře tak chodcům pohledově celý prostor a vytvoří v létě tolik potřebný stín.

Vykácení keřů podléhalo povolení Odboru životního prostředí, který k tomuto kroku vydal povolení v březnu 2020. Situace kolem epidemie na jaře toho roku způsobila, že jsme nestihli provést kácení v době vegetačního klidu a celá realizace se tak posunula.

Jak se rodila idea nové podoby, jak by mohla vypadat konečná podoba po úpravách, ale také zmíněný nepořádek si můžete prohlédnout na fotografiích.

Skica arch. Beneše z pohledu z ulice Fügnerova Skica arch. Beneše z pohledu z ulice Myslbekova ideová studie ČVUT Vizualizace možné konečné podoby Vizualizace možné konečné podoby Stav po vykácení keřů Nepořádek ukrytý ve starých keřích. Kromě viditelného odpadu zde bylo i velké množství jehel a stříkaček.

Výsadba stromů

Jako další etapa úpravy zeleně následovala v roce 2021 výsadba stromů. Povolení ke kácení původních keřů bylo podmíněno náhradní výsadbou 8 ks stromů. My jsme jich vysázeli rovnou 25. Výsadba stromů byla podpořena Státním fondem životního prostředí České republiky. Více o projektu se můžete dočíst na webu sazimebudoucnost.cz. Do výsadby se zapojili studenti i zaměstnanci ČVUT. Již v létě studenti Fakulty dopravní využili praktického cvičení a provedli vytyčení míst pro sadbu. Na podzim pak studenti Fakulty jaderné a fyzikálně inženýrské spolu se zaměstnanci vysadili celkem 25 stromů (16 lip a 9 okrasných jabloní) podle připraveného projektu.

Vytyčení - studenti FD Realizace - studenti FJFI Realizace - studenti a zaměstnanci FJFI Realizace - studenti a zaměstnanci FJFI Po realizaci - záběr z dronu směrem do Pohraniční ulice Po realizaci - pohled na alej od zadního vchodu SFZP

Artefakt

Během zrodu návrhů na podobu okolí po revitalizaci jsme dostali nečekanou nabídku umístit na našem pozemku skleněnou plastiku světově uznávaného autora prof. Mariana Karla, jehož díla naleznete např. v Japonsku či Španělsku a své skleněné plastiky vystavuje po celém světě. Artefakt je součástí velkého projektu CAAS, který byl finančně podpořen EU. V rozpočtu byla vyhrazena kapitola na podporu umění a díky tomu se zrodila spolupráce tří fakult ČVUT - Fakulty architektury, Fakulty elektrotechnické a Fakulty jaderné a fyzikálně inženýrské.

Interference

Interference je základním pojmem vlnové fyziky a optiky, který popisuje chování vln při setkání dvou nebo více zdrojů. V umění se interference používá jako zdroj inspirace pro tvorbu abstraktních děl, která odrážejí vlnovou povahu světla nebo zvuku. Umělci používají různé techniky, například překrývání vrstev, použití průhledných materiálů nebo různých textur, aby vytvořili efekty, které připomínají konstruktivní nebo destruktivní vlnovou interferenci. Více o tomto jevu zjistíte např. na Wikipedii

Inspirací pro vytvoření sochy nebo artefaktu je dialog mezi umělci a vědci a komunikace v rámci řady workshopů. Design sochy se pohybuje na pomezí abstraktní a konkrétní reprezentace a snaží se předat zážitek z částicové fyziky pozorovatelům z širšího publika. Centrálním tématem projektu (skleněné, multimediální sochy) je fyzikální jev interference. Skleněná socha dostala název Tabula rasa.

Artefakt byl původně navržen do kampusu ČVUT v Praze. Bohužel se nepodařilo získat svolení majitele pozemku (městská část Prahy) a tak se nabízela možnost umístit artefakt v Děčíně, kde Fakulta jaderná a fyzikálně inženýrská působí už od roku 1995. Původní podoba artefaktu byla úplně jiná, složená ze dvou zalomených skel. Bohužel výrobu a instalaci znemožnila epidemie covidu. Následné zvyšování cen materiálů a energií způsobilo, že se podoba artefaktu musela zjednodušit, aby byl za předem určené prostředky realizovatelný.

O umístění a orientaci artefaktu se postaral sám autor ve spolupráci s architektem Ondřejem Benešem. Došlo tak k mírné úpravě návrhu úpravy okolní zeleně, který jsme tou dobou už měli zpracovaný. Zároveň s tím ale bylo zřejmé, že musí dojít nejen k revitalizaci zeleně, ale i okolních zpevněných ploch, aby byla socha umístěna v důstojném prostředí. Tato revitalizace je nutná i vzhledem k současnému stavu povrchů a muselo by k ní časem dojít v každém případě. Umístění artefaktu však toto rozhodnutí uspíšilo.

Další podrobnosti o plastice naleznete v samostatném článku (nebo v menu pod názvem Tabula Rasa)

Revitalizace zpevněných ploch

Pro chystanou revitalizaci ploch bylo potřeba nejprve zajistit zdroj financování. Cena rekonstrukce chodníků je mimo možnosti rozpočtu vysoké školy. A protože jsou pozemky ve vlastnictví školy, nesmí se na jejich opravě finančně podílet ani město ze svého rozpočtu. Řešením tak byly dotační výzvy Evropských fondů. Podařilo se nám najít vhodný dotační titul v Operačním program Životní prostředí 2021—2027, které zajišťuje Ministerstvo životního prostředí. Tento titul obsahuje mimo jiné podporu pro "Realizace opatření ke zpomalení odtoku, pro vsak, retenci a akumulaci srážkové vody, zelené střechy, opatření pro využití šedé vody a řízenou dotaci podzemních vod". A právě zde jsme nalezli opatření s názvem "Budování propustných zpevněných povrchů nebo výměna stávajících nepropustných za propustné zpevněné", které umožňuje vyměnit stávající asfaltové povrchy za dlažbu se spárami pro vsak srážkových vod.

Využili jsme služeb projektanta Studia T-vektor Ing. Zdeňka Tesaře, který ve spolupráci s Ing. arch. Ondřejem Benešem, Ph.D připravil projekt celé realizace. Stavba je rozdělena na 3 etapy.

První etapa - chodníky

První etapa, zahájená v říjnu 2024, řeší chodníky před hlavním vstupem budovy, směrem k ulici Pohraniční a zastávce MHD Myslbekova. Při její realizaci dojde nejen k výměně povrchu, ale i k mírné modifikaci průběhu chodníku, jak je vidět z přiloženého nákresu situace. Důvodem pro tuto změnu byla jednak potřeba oddělit chodník od přímo navazující Lázeňské ulice, kdy řidiči občas řešili potřebu parkování vjezdem na tento chodník. Druhým důvodem byl artefakt Tabula Rasa, pospaný v přechozím odstavci, který se touto změnou ocitne ve středu zpevněné plochy. Díky spolupráci s vedením města, kterou opět zastřešuje arch. Ondřej Beneš, plánuje město navázat na tuto akci a zrekonstruovat ve stejném duchu ulici Pohraniční a Zámecké náměstí. Celá oblast by se tak měla esteticky pozvednout a vytvořit důstojné prostředí pro okolí vysoké školy, odpovídající své poloze s přímou návazností na historický střed města. Dojde také k další výsadbě stromů, které doplní v předchozích letech založenou lipovou alej. Pro přímo navazující zelené plochy kolem chodníků máme dále připravený plán na výsadbu okrasné zeleně. Pro tu bude ovšem nejdříve potřeba zajistit financování.

Druhá etapa - mlatová cesta

Druhá etapa, plánovaná na jaro 2025, vyřeší lichoběžníkový prostor před zadním vchodem do budovy, směrem k Dlouhé jízdě. V zelené ploše pod stromy směrem k bočné ulici vznikne v souladu se studií na úpravu okolí budovy ČVUT nová mlatová cesta, což je rovněž opatření podporované výše uvedeným dotačním titulem. Chodcům se tak otevře další možnost, jak projít kolem Zámeckého náměstí. V budoucnu by tuto cestu měly zastínit koruny nově vysazených stromů, což občané ocení zejména v létě. Prostor bude možné doplnit o lavičky nebo výsadbu okrasné zeleně.

Třetí etapa - parkoviště

Třetí etapa je v harmonogramu prací naplánována na léto 2025. Jde o parkoviště a navazující komunikace mezi budovou ČVUT a ulicí 2. polské armády. I když v tomto případě není technický stav povrchů tak špatný jako u předchozích etap, do budoucna by bylo stejně potřeba ho řešit. Vedlejším benefitem, kromě vsaku srážkových vod to umožní i přípravu na blízkou budoucnost, kdy bude potřeba vybudovat na parkovišti elektro nabíječky, přivést k budově nové optické sítě. V neposlední řadě je také potřeba zmínit úpravu přípojných komunikací pro chodce, kterým úprava zpříjemní průchod parkovištěm jak na straně závor, tak na straně kruhového objezdu.

Etapa 1 - Chodníky Etapa 2 - Mlatová cesta Etapa 3 - Parkoviště Publicita projektu

Naposledy upraveno 29. dubna 2026